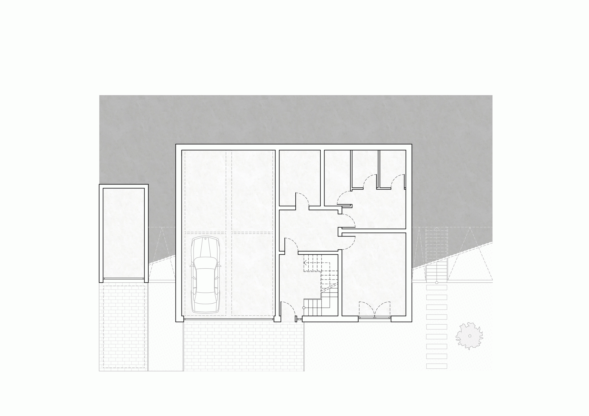
Errichtung eines Mehrfamilienhauses A
Zurück
Nächstes Projekt
Menu
Projekte
Leistungen
Kontakt
Impressum
Datenschutz
Projektart
Errichtung eines Mehrfamilienhaus
Ort
Aarbergen
Zeitraum
in Bearbeitung
Bauherrschaft
k.A.
1 / 8
2 / 8
3 / 8
4 / 8
5 / 8
6 / 8
7 / 8
8 / 8